产品简介
ZSGB矿用振动筛也称为ZSGB重型筛、ZSG直线振动筛,是一种通用矿用筛分设备,其筛箱运动轨迹近似直线,故属于矿用直线振动筛,其筛分特征等同于其他直线振动筛类产品。ZSGB矿用振动筛结构简单、可靠,筛分能力大且能耗少、维修简单,广泛应用于矿山、煤炭、电力、冶金、建材、耐火等各行各业对大块及中、小颗粒物料的筛分与分级作业,主要用于高炉槽下。

适用行业
适用于高炉槽下、烧结厂、煤炭、矿山、冶金、建材、电力、等行业。
适用物料
适用于煤、石灰石、碎石、砂砾等。
产品结构
ZSGB矿用振动筛主要由激振装置、筛箱、防尘罩、落料斗、减振装置和底座等部分组成。
1、振动电机:振动电机是一种将动力源和振动源和为一体的新型激振器,激振力大,使用可靠,调节简单.使用维护方便等特点。
2、筛箱:采用板材、型材焊接而成,其作用是将来料通过振动输送到破碎机。
3、减振弹簧:一般采用金属螺旋弹簧或橡胶弹簧,其作用是便机体产生弹性振动,减小振动载荷传递到基础或结构架上。
4、底座:采用板材焊接而成,其作用是支撑机体。
工作原理
ZSGB矿用振动筛工作时,由激振器产生的激振力通过筛箱传递给筛箱内的筛面上,因激振器产生的激振力为纵向力,迫使筛箱带动筛网面作纵向前后位移,筛网面上的物料被向前抛起,落下时大于筛孔的物料沿筛面自动下滑,小于筛孔的物料则透筛而落到下层,物料在筛网面上的运动轨迹为抛物运动,由于这样周而复始的物料运动,物料从入料端落入筛箱后,迅速前进、松散、透筛,完成筛分作业。
产品特点
1、体积小,重量轻,便于安装及工艺布置;
2、筛分能力大,能耗少,可节约能源;
3、结构简单,坚固耐用,备件量少;
4、筛网由小块拼装而成,更换简便。
型号说明
技术参数
型号 | 入料 粒度 (mm) | 筛孔 尺寸 (mm) | 处理 能力 (t/h) | 配用电机 | 电压 (V) | 功率 (KW) | 配用激振器 | 数量 | 振频 (HZ) | 双振幅 (mm) | 单点*大 动负荷 (N) |
ZSGB-0918 | <150 | 5-20 | 20-100 | 振动电机 | YZO-20-6 | 380 | 2.0x2 |
|
| 16 | 6-8 | 900 |
ZSGB-1020 | 25-120 | YZO-20-6 | 2.0x2 | 1300 |
ZSGB-1224 | 60-150 | 普通电机 | Y132M1-6 | 4.0x2 | WJZZ-70-6A | 1 | 1620 |
ZSGB-1424 | 80-200 | Y132M1-6 | 4.0x2 | WJZZ-100-6A | 1 | 2350 |
ZSGB-1230 | 80-200 | Y132M2-6 | 5.5x2 | WJZZ-100-6A | 1 | 2550 |
ZSGB-1330 | 80-200 | Y132M2-6 | 5.5x2 | WJZZ-130-6A | 1 | 3100 |
ZSGB-1530 | 100-250 | Y132M2-6 | 5.5x2 | WJZZ-130-6A | 1 | 3500 |
ZSGB-1536 | 100-300 | Y132M2-6 | 5.5x2 | WJZZ-130-6A | 1 | 4350 |
ZSGB-1836 | 150-350 | Y160M-6 | 7.5x2 | WJZZ-100-6A | 1 | 6500 |
ZSGB-1842 | 150-400 | Y160L-6 | 11x2 | WJZZ-100-6A | 1 | 7100 |
ZSGB-2042 | 170-450 | Y160L-6 | 11x2 | WJZZ-130-6A | 1 | 8500 |
ZSGB-2050 | 200-500 | Y160L-6 | 11x2 | WJZZ-130-6A | 1 | 9230 |
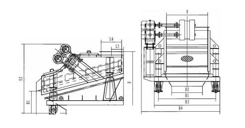
上振式ZSGB矿用振动筛图示
上振式ZSGB矿用振动筛外形安装尺寸表
型号 | L | L1 | L2 | L3 | L4 | L5 | L6 | B | B1 | B2 | B3 | B4 | H | H1 | H2 |
ZSGB-0918 | 2235 | 1261 | 565 | 1000 | 156 | 370 | 600 | 900 | 1350 | 900 | 1590 | / | 1560 | 566 | 1800 |
ZSGB-1020 | 2200 | 1250 | 600 | 760 | 307 | 360 | 600 | 1000 | 1380 | 1000 | 1680 | / | 1620 | 622 | 1838 |
ZSGB-1224 | 2550 | 1799 | 500 | 1150 | 379 | 356 | 600 | 1200 | 1670 | 900 | 1910 | 2282 | 1833 | 656 | 2050 |
ZSGB-1424 | 2650 | 1600 | 560 | 1102 | 341 | 334 | 550 | 1400 | 1720 | 1400 | 2030 | 2657 | 1880 | 748 | 2200 |
ZSGB-1230 | 3449 | 2260 | 650 | 1000 | 560 | 383 | 663 | 1200 | 1620 | 1200 | 1982 | 2466 | 2297 | 814 | 1647 |
ZSGB-1330 | 3449 | 2260 | 650 | 1000 | 560 | 383 | 663 | 1300 | 1720 | 1300 | 2082 | 2566 | 2297 | 814 | 2647 |
ZSGB-1530 | 3449 | 2260 | 650 | 1000 | 560 | 383 | 663 | 1500 | 1920 | 1500 | 2282 | 2766 | 2297 | 814 | 2647 |
ZSGB-1536 | 3858 | 2509 | 814 | 1912 | 272 | 433 | 700 | 1500 | 1920 | 1300 | 2240 | 2555 | 2782 | 1083 | 2900 |
ZSGB-1836 | 3800 | 2880 | 510 | 1835 | 676 | 493 | 845 | 1800 | 2880 | 1500 | 3280 | 3640 | 2230 | 700 | 2564 |
ZSGB-1842 | 2748 | 3675 | 453 | 2600 | 818 | 485 | 800 | 1800 | 3300 | 1800 | 4170 | 4179 | 2902 | 1027 | 3185 |
ZSGB-2042 | 2748 | 3675 | 453 | 2600 | 818 | 485 | 800 | 2000 | 3500 | 2000 | 4330 | 4380 | 2902 | 1027 | 3185 |
ZSGB-2050 | 5439 | 3675 | 779 | 2837 | 384 | 385 | 600 | 2000 | 3500 | 2000 | 4330 | 4380 | 3458 | 1199 | 3634 |
注:表中列出的振动筛型号均为单层筛,如果需要双层筛,请在订货时说明。
下振式图示